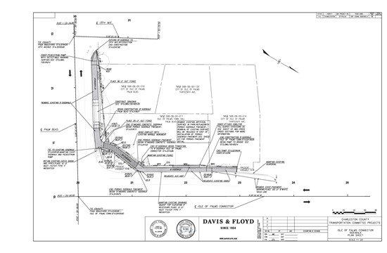
This project involves the construction of a 10 foot multi-use path that will connect the shoulder of the Isle of Palms Connector Bridge, which is used by bicyclists and pedestrians, to the sidewalk and right-of-way on Palm Boulevard.
This project will redirect pedestrian and bicycle traffic away from the vehicular traffic into the Leola Hanbury Memorial Park.
The City will work with the members of the Isle of Palms Garden Club on additional improvements and beautification efforts to the Leola Hanbury Memorial Park.
